|

等電位接地係統的設計
接地係統的構成
儀表係統防雷工程的接地係統分為室內和室外兩部分。
室內儀表接地係統適用於各類控製室、現場機櫃室、現場控製室等
室外儀表接地係統適用於現場儀表、現場接線箱、現場機櫃以及分析小屋等。
儀表係統防雷工程的接地係統應采用等電位連接方式。
儀表係統防雷工程的接地係統與儀表接地係統相同,由接地裝置和接地連接係統構成
接地裝置共用電氣專業的接地裝置。
雷電電湧接地排


電湧防護器的接地基本原理

電湧防護器的機櫃內接地連接
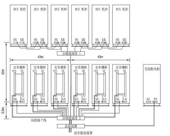
電湧防護器機櫃內接地連接應采用圖6.5.2的方式。
注:tuzhongkongzhixitongjiguishidianyongfanghuqijiguidexiangguanjigui。fankongzhixitongjiguidexinhaoxianluzhongshezhidianyongfanghuqide,jiyudianyongfanghuqijiguiyouxianlulianxidejigui,junweidianyongfanghuqijiguidexiangguanjigui。
dangjiguishuliangjiaoshaoshi,yingcaiyongkongzhixitongjiguidegongzuojiedihuiliutiaoyudianyongfanghuqijiguidegongzuojiedihuiliutiaozhijielianjiedefangshi。lianjielujingyiweizhixian,lianjiedaoxianchangdubuyidayu3m。
同一機櫃內的多根導軌,宜在機櫃內彙合到機櫃接地彙流條,再接到總接地排,也可分別接到延長型接地排。

電湧防護器機櫃之間的接地連接
電湧防護器機櫃之間的接地連接應采用圖6.5.3的方式。
控製係統機櫃與電湧防護器機櫃的間距不應大於3m。
控製係統各機櫃與所連接的分組接地排的間距不應大於3m。
電湧防護器機櫃與所連接的分組接地排的間距不宜大於0.5m,最大間距不應大於3m。
機櫃數量較多時,應采用分組連接的方式。同一信號回路的電湧防護器和信號處理儀表應在同一分組。每一分組的接地連接都應采用圖6.5.3的方式。
機櫃接地彙流條的串接數量不應大於3個。 電湧防護器 安全柵總接地排信號線 接地裝置 機櫃工作接地彙流條直流電源 +-保護接地彙流條內屏蔽 控製係統機櫃直流電源+-工作接地彙流條 保護接地彙流條 儀表及控製係統N PE
電湧防護器機櫃與所連接的分組接地排的連接導線路徑宜為直線,連接導線長度不宜大於3m。

|