ACR230ELH電力質量分析儀的設計和應用
徐希華 中國聯合工程公司上海分公司 上海 200011
湯建軍 左淩俊 裴善勇 安科瑞電氣股份有限公司 上海 201801
摘要:本文介紹了ACR230ELH電力質量分析儀的設計原理以及該產品在2010年上海世博會中心場館配電係統中的實際應用。
關鍵字:電力質量分析儀;諧波;世博會;ARM;DSP
隨(sui)著(zhe)電(dian)力(li)電(dian)子(zi)技(ji)術(shu)的(de)蓬(peng)勃(bo)發(fa)展(zhan),供(gong)電(dian)係(xi)統(tong)中(zhong)增(zeng)加(jia)了(le)大(da)量(liang)的(de)非(fei)線(xian)性(xing)負(fu)荷(he),從(cong)低(di)壓(ya)小(xiao)容(rong)量(liang)的(de)家(jia)用(yong)電(dian)器(qi)到(dao)大(da)容(rong)量(liang)的(de)工(gong)業(ye)交(jiao)流(liu)變(bian)換(huan)器(qi)的(de)廣(guang)泛(fan)應(ying)用(yong),引(yin)起(qi)了(le)電(dian)網(wang)電(dian)壓(ya)、電流波形的畸變,威脅到電力係統安全、穩定、經濟運行。在國家一些重要項目的建設中電網質量的監測顯得尤為重要,作為目前功能完整,體積較小的96型ACR230ELH電力質量分析儀對電力質量檢測、解決諧波產生的問題有著重要的指導作用。
應用的先進技術:
為了對上述電網諧波危害進行相應的度量、評估和考核,上海安科瑞電氣股份有限公司研發了基於DSP+ARM7模塊化設計方案的高端電力質量分析產品ACR230ELH。
該產品采用當今世界流行的高檔電能標設計方案:DSP+MCU的實現方法,將DSP的高速數字信號處理功能和高檔MCU(ARM)完善的管理、通訊、豐富的接口功能相結合。基本工作原理如下:

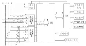
圖1硬件設計原理框圖
互感器將來自電網的電壓、電流信號實時送到表內16位高速Sigma-DelTa AD進行6個通道電力信號的同步采樣,AD轉換完成之後把數據傳送給DSP進行各種複雜的數值運算,通過相應的數學運算,DSP完成整表的計算功能,具體包括所有電力參數的測量、有功、無功、視在電能的計量等工作;完成之後DSP把相應的計算數據和ARM7進行數據交換,ARM7主要完成液晶顯示、數據統計存儲、外部通訊、菜單鍵盤操作、DI/DO量的輸入控製等工作。
A/D采用的是ADI公司推出的AD73360L芯片,內帶6個獨立通道的16位串行模數轉換器,采用Sigma-Delta轉換原理,具有良好的抗混疊性能。AD73360的數據轉換輸出接口是同步串口(SPORT口),DSP采用的是ADSP 219x芯片,同樣具有相同SPORT接口,使用起來非常的方便,免去了IO口模擬帶來的一係列煩惱。
ARM7采用的是NXP的LPC2138,該芯片功能強大,外圍端口資源豐富,內部RAM最大可以達到32K,運行速度可達60M,帶有多通道的32位定時器,多路PWM輸出資源,多個SCI、SPI、IIC接口;IO口可以承受5V電壓輸入;內部還帶有多種運行功耗模式。 該表軟件分為兩部分,其一是DSP的相關程序流程代碼,這部分代碼按功能上分主要是以下幾塊:分為AD采樣控製、串口數據傳輸、大量複雜的數值運算(包括傅氏變換)、能量累計、電能質量分析、電能脈衝輸出等幾個部分;其二是ARM7中的相關程序流程,主要包括:液晶顯示、按鍵處理、數字通訊、開關量輸入輸出功能的實現以及部分事件記錄功能的實現;在編程語言的選擇上,DSP部分采用C語言和彙編語言混合編程,為了保證係統良好的實時性,以彙編語言為主,C語言作整個程序框架進程調度,既保證了程序的易讀性,也兼顧了係統良好的實時性。ARM7的程序是基於uc/OS-II操作係統平台開發的,程序簡單易讀,可移植性較好,便於產品的後續升級工作。整個係統的軟件大致要完成3個部分的工作:係統的初始化代碼、uc/OS-II操作係統移植、應用任務的編寫。
算法描述
基於上述的模塊化設計理念,充分考慮了數字信號處理器的強大的數值計算功能,讓其完成了所有的計算變換等功能;具體包括電壓、電流有效值、有功、無功功率、視在功率、功率因數、有功、無功、視在電能的累計、電能質量指標的計算。考慮到常規電參量的計算公式比較常見,這裏就不再贅述了,著重把電能質量指標的計算方法描述一下:電能質量方麵的計算,具體包括:2-31次諧波分析,電壓波峰係數,電話波形因子,電流K係數,三相電壓、電流不平衡度,電壓、電流正序、負序、零序分析,電壓偏差、頻率偏差。
電能質量的相關指標如下:
A.諧波(GB/T 14549);
電壓的2-31次諧波分析主要是采用DSP的FFT算法來實現,得到的基波分量和諧波分量分別為U1,U2…Uh;各次諧波含有率的計算公式如下:
; ;
電流的2-31次諧波分析與之類似;
圖2 電網諧波波形及諧波棒圖
B.不平衡度(GB/T 15543)
電壓不平衡包括每相信號的幅度和三相之間的角度不平衡,具體計算參照下述公式:
電流不平衡的計算方法和電流一致。
圖3 三相不平衡波形
C.頻率偏差(GB/T 15945)
頻率偏差即係統頻率的實際值和標稱值之差。電力係統正常頻率偏差允許值為±0.2Hz。當係統容量較小時,偏差值可以放寬到±0.5Hz。用戶衝擊負荷引起的係統頻率變動不得超過±0.2Hz,根據衝擊負荷性質和大小以及係統的條件也可適當變動限值,但應保證近區電力網、發電機組和用戶的安全,穩定運行以及正常供電。
D. 電壓偏差(GB/T 12325)
35KV及以上供電電壓正,負偏差的絕對值之和不超過額定電壓的10%。
10KV及以下三相供電電壓允許偏差為額定電壓的±7%。220V單相供電電壓允許偏差為額定電壓的+7%,-10%。
圖4 電壓變化
此外在電力係統實際運行過程中,還有一些參數會間接的反映出電網波形的實際情形,比如電壓波峰係數、電壓電話波形因子和電流K係數(前麵兩個主要是衡量電壓波形畸變帶來的影響、第三個主要是衡量電流波形畸變帶來的變化)。
電壓波峰係數的計算如下: 
電話波形因子: 
電流K係數: 
實現功能及性能:
ACR230ELH實現了以下功能:
1、高精度測量常規的三相交流電量,如三相相電壓、線電壓、電流、有功功率、無功功率、視在功率、功率因數等;
2、專業的四象限電能(包括吸收有功電能、釋放有功電能、感性無功電能、容性無功電能)高精度計量;可分8個時段三種費率計量本月、上月、上上月以及總的有功電能;
3、全麵的測量電壓電流2-31次諧波分量及THD、電流K係數、電壓波峰係數、電話波形因子及三相電壓電流不平衡度等,用戶可以方便的對供電電網質量進行分析;
4、具有4路開關量輸入、2路開關量輸出、一路485接口Modbus協議的通訊接口,充分滿足電力自動化遙控遙測需求。
該產品已經通過CE論證並成功出口到英國和西班牙,詳細效果見下圖。
圖5 出口OEM儀表外觀
應用案例
世博中心是上海世博會園區內首座永久性場館,位於盧浦大橋東側世博園區B區濱江綠地內,東西長約350米,南北寬約140米,總建築麵積約14萬平方米,現已建成並投入試運營。世博中心作為世博永久性場館中最重要的場館之一,在世博會期間,將承擔世博會運營指揮中心、慶典會議中心、新聞中心、論壇活動中心等功能。
圖6 世博中心場館外觀圖
安科瑞電氣股份有限公司的ACR230ELH在該項目中一舉包攬了中心場館5個變電所的所有電力數顯示儀表。以世博中心地下5個變電所中的1#所舉例:這是一個0.4kV低壓配電站係統,由2個受電櫃、2個應急進線櫃、1個母聯櫃、4個補償櫃,155個饋出櫃組成。饋出櫃負載具體可分為:展覽用電、照明用電、空調風機用電、動力用電和消防用電。配電係統中采用了LED等節能光源、大功率變頻中央空調、展覽用電等大量非線性用電設備,雖然降低了實際的功耗,以實現節能的目標,但是這些設備都是電力係統諧波的主要來源;這(zhe)些(xie)設(she)備(bei)即(ji)使(shi)供(gong)給(gei)它(ta)們(men)理(li)想(xiang)的(de)正(zheng)弦(xian)波(bo)電(dian)壓(ya),取(qu)用(yong)的(de)電(dian)流(liu)也(ye)是(shi)非(fei)線(xian)性(xing)的(de),即(ji)有(you)諧(xie)波(bo)電(dian)流(liu)存(cun)在(zai)。這(zhe)些(xie)設(she)備(bei)產(chan)生(sheng)的(de)諧(xie)波(bo)電(dian)流(liu)注(zhu)入(ru)電(dian)力(li)係(xi)統(tong)中(zhong),使(shi)係(xi)統(tong)各(ge)處(chu)電(dian)壓(ya)產(chan)生(sheng)諧(xie)波(bo)分(fen)量(liang)。這(zhe)些(xie)設(she)備(bei)單(dan)個(ge)容(rong)量(liang)不(bu)大(da),但(dan)基(ji)數(shu)很(hen)大(da)且(qie)散(san)布(bu)於(yu)各(ge)處(chu),電(dian)力(li)部(bu)門(men)又(you)難(nan)以(yi)治(zhi)理(li)。假(jia)如(ru)這(zhe)些(xie)設(she)備(bei)的(de)電(dian)流(liu)諧(xie)波(bo)含(han)量(liang)過(guo)大(da),則(ze)會(hui)對(dui)世(shi)博(bo)中(zhong)心(xin)場(chang)館(guan)電(dian)力(li)係(xi)統(tong)造(zao)成(cheng)嚴(yan)重(zhong)影(ying)響(xiang)。

圖 7
ACR230ELH多功能電力儀表在現場使用之後,用戶除了可以通過該表了解所有常規電參數之外,可以了解世博中心場館現場各種電力設備投運前、後hou相xiang關guan係xi統tong的de電dian力li質zhi量liang水shui平ping及ji其qi變bian化hua對dui有you關guan設she備bei的de影ying響xiang,方fang便bian電dian力li質zhi量liang故gu障zhang診zhen斷duan和he異yi常chang的de原yuan因yin測ce量liang,為wei大da型xing公gong建jian的de穩wen定ding運yun行xing提ti供gong實shi時shi數shu據ju。
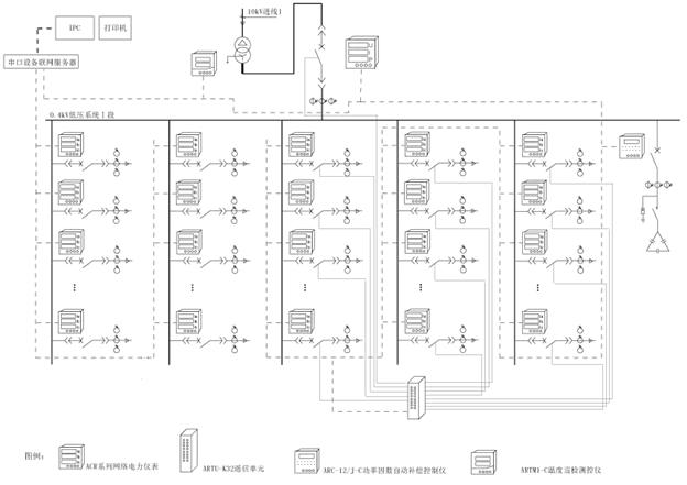
在該項目中主要用到了該產品的以下功能,常規電參數測量、複費率電能計量、電力質量分析、分斷開關的分合狀態指示以及485通訊組網。現場係統網絡結構(如圖 10):現場設備層――網絡通訊層――站控管理層。也即是:先將現場智能設備接入就地的Modbus總線,再將Modbus總線通過串口設備聯網服務器轉換成TCP/IP以太網與監控主機進行數據交換,最終由方便管理人員通過監測係統軟件了解及掌握現場狀況,並進行實時監測。
1、現場設備層采集所需實時監測的電參量:
現場設備層是數據采集終端,主要是由智能儀表組成(此項目中主要為ACR230ELH電力質量分析儀),向數據中心上傳存儲的參數。世博中心場管項目中,例如主進線回路的三相電流、三相電壓、有功/無功功率、功率因數及頻率;電容補償回路的功率因數、有功、無功功率;聯絡回路的三相電壓、電流;普通低壓出線回路的三相電流、功率;重要低壓出線回路的三相電流、有功、無功功率、電壓和電流的2-31次諧波、諧波畸變率(THDi、THDu)等電參量;
2、網絡通訊層實現數據傳輸:
在現場設備(如ACR230ELH)中(zhong)采(cai)集(ji)到(dao)的(de)電(dian)參(can)量(liang),通(tong)過(guo)以(yi)太(tai)網(wang)實(shi)現(xian)係(xi)統(tong)信(xin)息(xi)的(de)交(jiao)換(huan)和(he)共(gong)享(xiang),並(bing)將(jiang)數(shu)據(ju)提(ti)供(gong)給(gei)總(zong)變(bian)監(jian)控(kong)係(xi)統(tong)。同(tong)時(shi),轉(zhuan)達(da)上(shang)位(wei)機(ji)對(dui)現(xian)場(chang)設(she)備(bei)的(de)各(ge)種(zhong)控(kong)製(zhi)命(ming)令(ling)。
3、站控管理層以最直觀方便的形式反映現場各個運行狀態:
站(zhan)控(kong)管(guan)理(li)層(ceng)針(zhen)對(dui)監(jian)測(ce)係(xi)統(tong)的(de)管(guan)理(li)人(ren)員(yuan),是(shi)人(ren)機(ji)交(jiao)互(hu)的(de)直(zhi)接(jie)窗(chuang)口(kou),也(ye)是(shi)係(xi)統(tong)的(de)最(zui)上(shang)層(ceng)部(bu)門(men)。監(jian)測(ce)係(xi)統(tong)軟(ruan)件(jian)具(ju)有(you)良(liang)好(hao)的(de)人(ren)機(ji)交(jiao)互(hu)界(jie)麵(mian),對(dui)采(cai)集(ji)的(de)現(xian)場(chang)各(ge)類(lei)數(shu)據(ju)信(xin)息(xi)計(ji)算(suan)、分析與處理,以報表及圖文方式直觀地體現各種電參量信息及係統運行以來的具有參考價值的曆史數據,如諧波數據、棒圖及曲線,電力能耗的日、月、年報表,日誌報表等等。
結束語
安科瑞電氣股份有限公司的ACR230ELH可以實時監測饋出負荷的負載特性,監測電力質量參數,對諧波等參數進行實時分析,便於上位機係統實時監控電力係統運行狀況、諧波汙染程度,給世博運行維護工程師提供可靠真實數據,以便他們及時采取合理的應對措施,為實現綠色環保世博保駕護航。
圖8 係統網絡拓撲結構
參考文獻
1)《電力電測數字儀表原理與應用指南》,任致程,周中,中國電力出版社
2)《電能質量國家標準應用指南》,中國標準出版社
3)《數字信號處理原理及其MatLab實現》,電子工業出版社
4)《工業與民用配電設計手冊》,任元會,中國電力出版社
|