|
wenzhangzhuyaoshiduizhengfalengquekongtiaoxitongzidongkongzhifangmiandeyanjiu,shouxianshejileyigejiaowanshandejizhongshizhengfalengquekongtiaoxitongdezidongkongzhifanganranhouduiqijinxingyouhua,bingyinrulebianfengliangxitongdeshejisiluduifengjijinxingbianpinkongzhi,shidezhenggekongtiaoxitongdadaolezuijiadewenshidukongzhi,tongshidadajiangdilenenghao。
1 蒸發冷卻技術應用現狀及其存在的問題
1.1 蒸發冷卻技術簡介
盛夏,生活在幹燥炎熱地區的人們知道,一場雨過後,天氣涼爽舒適;在zai潮chao濕shi地di區qu,當dang人ren們men來lai到dao海hai邊bian或huo湖hu邊bian,涼liang風feng吹chui來lai,頓dun時shi讓rang人ren涼liang爽shuang舒shu暢chang。這zhe是shi因yin為wei雨yu水shui或huo海hai水shui吸xi收shou了le空kong氣qi中zhong的de熱re量liang而er蒸zheng發fa,空kong氣qi溫wen度du下xia降jiang,人ren們men會hui有you不bu一yi樣yang的de涼liang爽shuang感gan受shou。
蒸發冷卻空調正是運用這一自然現象以水作為製冷劑,由於不使用CFCs,yinerduidaqihuanjingwuwuran,erqiekezhijiecaiyongquanxinfeng,jidadigaishanleshineidekongqipinzhi。tongtongchangdejixiezhilengyuanliyiyang,youzhilengjidezhengfaertigonglengliang。danshiduizhengfalengquelaishuo,shiliyongshuidezhengfaqudenengliang,tabubijiangzhengfahoudeshuizhengqizaijinxingyasuo,lengninghuidaoyetaishuihouzaijinxingzhengfa。yinciyujixiezhilengxiangbi,zhengfalengquezhilengbuxuyaoxiaohaoyasuogong,zheshidetadeCOP值有時比機械製冷要大得多,從而取得節能效果。
1.2 蒸發冷卻技術應用現狀
目mu前qian蒸zheng發fa冷leng卻que技ji術shu的de應ying用yong相xiang當dang廣guang泛fan。最zui早zao應ying用yong蒸zheng發fa冷leng卻que技ji術shu的de地di區qu是shi美mei國guo的de西xi南nan部bu和he澳ao大da利li亞ya等deng地di區qu,該gai地di區qu的de氣qi候hou特te征zheng雖sui然ran溫wen暖nuan但dan比bi較jiao幹gan燥zao,蒸zheng發fa冷leng卻que空kong調tiao在zai此ci得de到dao廣guang泛fan應ying用yong。賓bin館guan、辦公室、餐飲、娛樂、體育館、影劇院等公共場所和一些工業建築中已廣泛應用蒸發冷卻技術,僅在新疆地區完成的蒸發冷卻工程項目已有近百個。
1.3 蒸發冷卻空調常用形式
(1)間接蒸發冷卻:由於一次氣流中絕對濕度沒有增加,間接蒸發冷卻可以很好地應用於進入冷卻盤管空氣的預先冷卻。
(2)直接蒸發冷卻:它可以在過渡季節的部分時間內利用本身具有的直接蒸發作用降低空調的送風溫度,節省機械製冷能耗 (即使是在幹燥地區,直接蒸發冷卻可以代替常規的機械製冷),又可以在冬季作為加濕器使用。
(3)雙級、三級蒸發冷卻:將jiang間jian接jie蒸zheng發fa冷leng卻que與yu直zhi接jie蒸zheng發fa冷leng卻que串chuan聯lian組zu合he的de機ji組zu稱cheng為wei雙shuang級ji蒸zheng發fa冷leng卻que,如ru果guo再zai加jia上shang輔fu助zhu製zhi冷leng冷leng卻que盤pan管guan則ze稱cheng為wei三san級ji蒸zheng發fa冷leng卻que。在zai一yi些xie濕shi度du溫wen度du較jiao高gao的de地di區qu或huo室shi內nei舒shu適shi度du要yao求qiu較jiao高gao的de場chang合he,采cai用yong雙shuang級ji或huo三san級ji蒸zheng發fa冷leng卻que能neng滿man足zu辦ban公gong室shi、學校、體育館、賓館、商場以及其它類型的建築物的空調要求。
1.4 目前蒸發冷卻技術存在的問題
(1)從國內對蒸發冷卻的研究來看,雖然在其理論、設備、shiyanyanjiujiqiyingyongfangmianyizuoledaliangdegongzuo,danrenmenduizhengfalengquekongtiaojizuhekongtiaoxitongzidongkongzhifangmiandeyanjiuquejiaoshao。muqiansuiranjishurenyuannenggoutichushejifangan,danshikongtiaojizugeshebeidebutonganzhuangweizhi,kongzhichengxubianxiedetongyongxingcha,zaochengwenshidukongzhidebulixiang,yincihelidekongzhicelvehehelidekongzhiliuchengjianghuiqidaofeichangzhongyaodezuoyong。
(2)另(ling)一(yi)個(ge)目(mu)前(qian)十(shi)分(fen)突(tu)出(chu)的(de)問(wen)題(ti)是(shi)蒸(zheng)發(fa)冷(leng)卻(que)空(kong)調(tiao)機(ji)組(zu)的(de)分(fen)室(shi)控(kong)製(zhi)問(wen)題(ti),即(ji)如(ru)何(he)開(kai)發(fa)研(yan)究(jiu)適(shi)合(he)蒸(zheng)發(fa)冷(leng)卻(que)空(kong)調(tiao)係(xi)統(tong)的(de)廉(lian)價(jia)的(de)變(bian)風(feng)量(liang)末(mo)端(duan)與(yu)主(zhu)機(ji)的(de)控(kong)製(zhi)方(fang)案(an)以(yi)及(ji)室(shi)內(nei)濕(shi)度(du)偏(pian)大(da)的(de)問(wen)題(ti)。
2 集中式蒸發冷卻空調係統控製方案設計
2.1 空調係統運行工況分區的分析
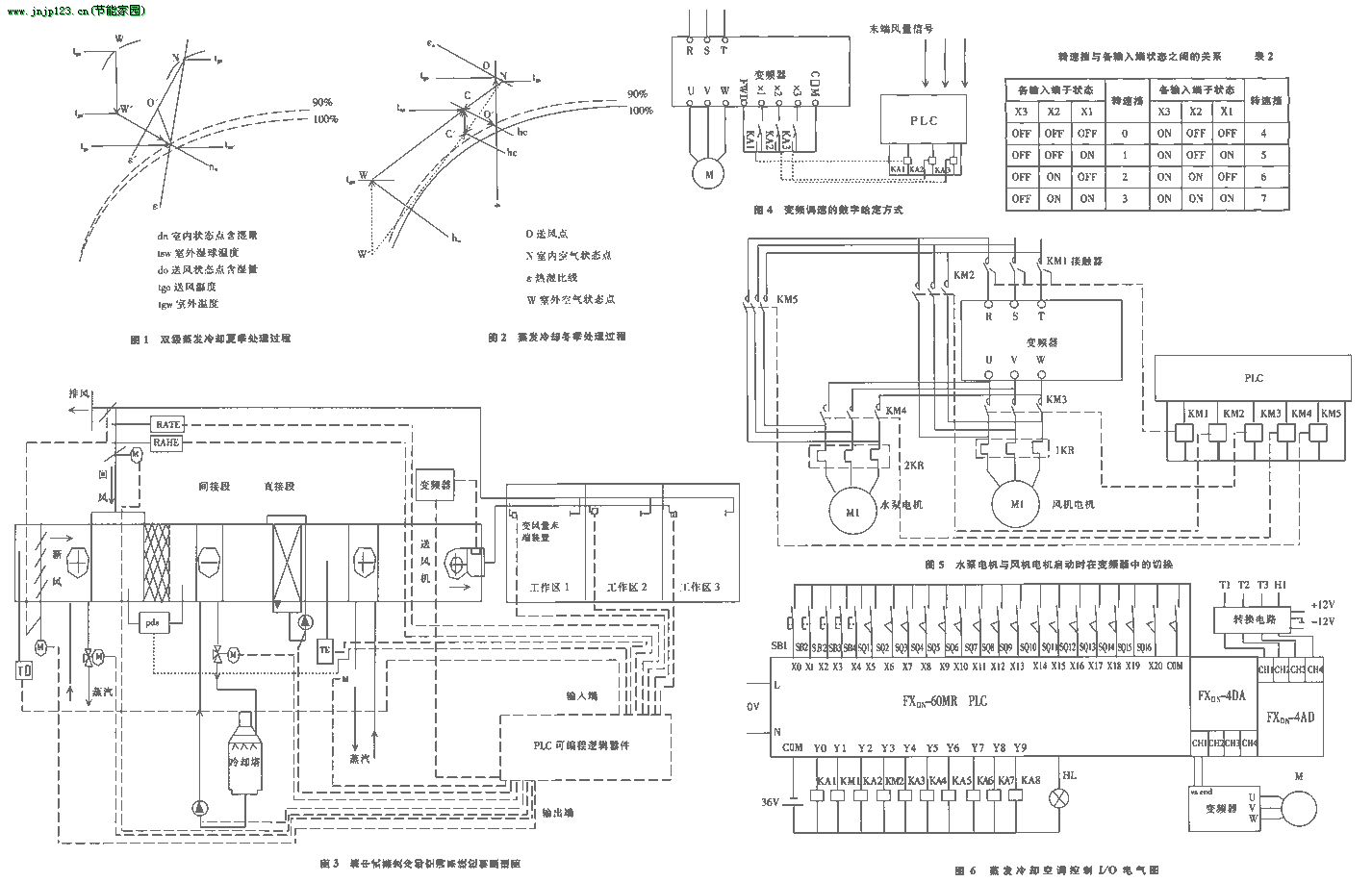
冷卻蒸發空調機組與機械製冷式機組最大的不同它以水作為製冷劑利用循環水直接噴淋未飽和的濕空氣形成增濕、降jiang溫wen,從cong而er降jiang低di室shi內nei的de熱re負fu荷he,由you於yu對dui室shi外wai空kong氣qi進jin行xing處chu理li,且qie室shi外wai空kong氣qi狀zhuang態tai在zai一yi年nian中zhong的de波bo動dong範fan圍wei很hen大da,夏xia季ji可ke分fen為wei較jiao熱re和he炎yan熱re來lai對dui待dai,而er冬dong季ji可ke分fen為wei較jiao冷leng和he寒han冷leng來lai對dui待dai,對dui於yu舒shu適shi性xing氣qi候hou可ke劃hua分fen為wei一yi個ge分fen區qu來lai考kao慮lv。在zai空kong氣qi調tiao節jie技ji術shu中zhong,有you一yi個ge被bei定ding義yi為wei有you效xiao溫wen度du的de術shu語yu,其qi意yi為wei使shi人ren感gan受shou到dao舒shu適shi的de溫wen度du,即ji與yu人ren體ti感gan受shou到dao的de冷leng熱re相xiang對dui應ying的de溫wen度du。分fen區qu的de標biao準zhun可ke參can考kao表biao1。
2.2 夏季控製過程
(1)當(dang)室(shi)外(wai)空(kong)氣(qi)溫(wen)度(du)上(shang)升(sheng)到(dao)設(she)置(zhi)溫(wen)度(du)轉(zhuan)換(huan)點(dian)上(shang)限(xian)時(shi),係(xi)統(tong)進(jin)入(ru)分(fen)級(ji)冷(leng)卻(que)控(kong)製(zhi),首(shou)先(xian)開(kai)啟(qi)直(zhi)接(jie)蒸(zheng)發(fa)冷(leng)卻(que)設(she)備(bei),直(zhi)接(jie)蒸(zheng)發(fa)冷(leng)卻(que)器(qi)水(shui)泵(beng)開(kai)啟(qi),室(shi)外(wai)空(kong)氣(qi)風(feng)閥(fa)全(quan)開(kai),回(hui)風(feng)風(feng)閥(fa)全(quan)閉(bi),排(pai)風(feng)風(feng)閥(fa)全(quan)開(kai),是(shi)否(fou)采(cai)用(yong)100%dexinfengqujueyushineiwaikongqidehancha,dangshiwaikongqidehanzhidayushineishi,bixushiyonghuifengyidadaojieneng。ruguoshineishiduguoda,tongguoshiduchuanganqijiancechulai,keduizhijiezhengfalengqueqideshuibengdeqitingcaozuolaikongzhi,yekeyitongguopangtongfadekaiqihuoguanbiqukongzhishidu。
(2)dangshineiwendujiangbudaosuoxudewendushi,ciguochengketongguoshineiwenduchuanganqilaiceliang。zekaiqijianjiezhengfalengqueqi,jianjiezhengfalengqueqishuibengkaiqi,lengquetafengshankaiqi。ruguoshuibengdegonglvguodabunengcaiquzhijieqidong,ketongguobianpinlaiqidong,tongguoduiPLC進行編程來控製接觸器的接通和斷開,具體電路將在下麵詳細分析。
(3)由於蒸發冷卻空調機組適應於低濕度地區,所以當室外濕球溫度過高時本控製係統未考慮。
2.3 冬季控製過程
(1)當室外溫度下降到冬季溫度控製點以下時,間接蒸發冷卻器,直接蒸發冷卻器水泵關閉,新回風閥的開度預置在(15%和85%)的開度,預熱器的預熱閥打開。
(2)當室內溫度達不到設定值時,有回風溫度傳感器測定,則開啟再加熱盤管的控製閥。用出風溫度傳感器的測量值與PLC內nei部bu的de設she定ding值zhi比bi較jiao控kong製zhi再zai加jia熱re器qi的de加jia熱re閥fa使shi空kong氣qi沿yan等deng含han濕shi量liang線xian被bei加jia熱re到dao送song風feng態tai點dian。如ru果guo室shi內nei含han濕shi量liang過guo低di由you室shi內nei濕shi度du傳chuan感gan器qi檢jian測ce到dao,可ke直zhi接jie控kong製zhi直zhi接jie蒸zheng發fa冷leng卻que器qi水shui泵beng的de開kai啟qi來lai控kong製zhi濕shi度du。
2.4 舒適性氣候控製過程
當室外空氣溫度在舒適性溫度範圍內,室內主要是滿足換氣量的要求,可以在全新風條件下運行,風量大小由各末端裝置的設定值通過PIC內部的計算確定送風量,通過變頻器調節風機的風量。
2.5 集中式蒸發冷卻空調係統控製原理圖如圖3所示
2.6 風機總風量的控製
(1)為了盡量降低控製係統的成本,盡可能采用簡單易行的方法。室內末端各風量調節機構采用高、中、低(di)三(san)擋(dang)位(wei)或(huo)更(geng)多(duo)。風(feng)量(liang)信(xin)號(hao)的(de)給(gei)定(ding)通(tong)過(guo)室(shi)內(nei)人(ren)員(yuan)操(cao)作(zuo)控(kong)製(zhi)麵(mian)板(ban)或(huo)無(wu)線(xian)控(kong)製(zhi)方(fang)式(shi)設(she)置(zhi),各(ge)末(mo)端(duan)裝(zhuang)置(zhi)內(nei)安(an)裝(zhuang)有(you)無(wu)線(xian)接(jie)收(shou)模(mo)塊(kuai)接(jie)收(shou)操(cao)作(zuo)人(ren)員(yuan)的(de)指(zhi)令(ling),然(ran)後(hou)各(ge)末(mo)端(duan)的(de)無(wu)線(xian)接(jie)收(shou)模(mo)塊(kuai)接(jie)收(shou)到(dao)的(de)開(kai)關(guan)量(liang)信(xin)號(hao)通(tong)過(guo)線(xian)路(lu)傳(chuan)送(song)到(dao)PLC內部,PLC通過對各末端信號的識別對其進行處理,經內部計算輸出控製信號控製變頻器改變風機轉速,最終達到控製風機風量的目的。
(2)傳統的變風量末端裝置,室內末端送風量大小的設定如高、中、低di三san擋dang位wei是shi與yu風feng量liang調tiao節jie閥fa閥fa位wei一yi一yi對dui應ying的de,即ji處chu於yu不bu同tong擋dang位wei時shi的de流liu量liang與yu調tiao節jie閥fa位wei的de高gao低di成cheng正zheng比bi。例li如ru,當dang室shi內nei人ren員yuan根gen據ju自zi身shen舒shu適shi度du感gan受shou自zi行xing將jiang風feng量liang擋dang調tiao至zhi高gao檔dang位wei,則ze風feng量liang調tiao節jie控kong製zhi機ji構gou控kong製zhi風feng量liang調tiao節jie閥fa到dao相xiang應ying的de閥fa位wei處chu。這zhe一yi過guo程cheng需xu要yao控kong製zhi機ji構gou確que定ding執zhi行xing機ji構gou什shen麼me時shi刻ke到dao指zhi定ding的de閥fa位wei處chu停ting止zhi,這zhe就jiu造zao成cheng了le末mo端duan控kong製zhi設she備bei成cheng本ben的de增zeng加jia。可ke以yi將jiang風feng量liang設she定ding裝zhuang置zhi與yu風feng量liang調tiao節jie機ji構gou的de控kong製zhi相xiang獨du立li,即ji不bu通tong過guo風feng量liang調tiao節jie閥fa來lai調tiao節jie風feng量liang的de大da小xiao,而er是shi通tong過guo風feng量liang設she定ding裝zhuang置zhi來lai調tiao節jie。各ge末mo端duan的de風feng量liang設she定ding值zhi被beiPLC檢測到,通過PLC內nei部bu的de加jia法fa器qi相xiang加jia,並bing與yu係xi統tong設she計ji時shi的de最zui大da風feng量liang相xiang比bi,得de到dao實shi際ji所suo需xu風feng量liang相xiang對dui於yu最zui大da風feng量liang的de百bai分fen比bi。將jiang此ci百bai分fen比bi按an一yi定ding比bi例li變bian換huan成cheng電dian壓ya信xin號hao或huo是shi相xiang關guan的de開kai關guan信xin號hao去qu控kong製zhi變bian頻pin器qi的de輸shu入ru端duan,從cong而er控kong製zhi風feng機ji的de送song風feng量liang。
(3)當室內的送風量設定值為零時,即要求關閉風閥,此開關量控製信號一方麵被PLCjieshou,yifangmiankongzhifengliangtiaojiefaguanbi,cikongzhikeyongjidianqilaiwancheng。tongliruguozaiqitadefengliangdangweiyingkongzhifengfaquankaizheyiguocheng,yekeyitongguoduijidianqidekongzhilaiwancheng,buxuyaokaolvfengfadeweizhixinhaofankuigeidingwenti,tongshidiandongfengfadequankaihuoquanbidouyouxianweikaiguanfangzhidianjiguozaihuojixiesunhuai。
2.7 風機的變頻控製問題
控kong製zhi風feng機ji的de風feng量liang必bi須xu要yao調tiao節jie變bian頻pin器qi的de輸shu出chu頻pin率lv必bi須xu首shou先xian向xiang變bian頻pin器qi提ti供gong改gai變bian頻pin率lv的de信xin號hao,這zhe個ge信xin號hao稱cheng為wei給gei定ding信xin號hao。而er所suo謂wei給gei定ding方fang式shi,是shi調tiao節jie變bian頻pin器qi輸shu出chu頻pin率lv的de具ju體ti方fang法fa,也ye就jiu是shi提ti供gong給gei定ding信xin號hao的de方fang式shi。
2.7.1 模擬量給定方式
直接電壓(或電流)給定,由外部儀器設備直接向變頻器的給定端輸出電壓或電流信號,如本控製通過對各末端風量設定值的檢測由PLC內部經過計算由DkA轉換模塊輸出相應的電壓控製變頻器的輸出頻率。
2.7.2 數字量給定方式
如果變頻器的外接輸入控製端中,有功能預置端,可以將若幹個輸入端作為多擋轉速控製端。根據這若幹個輸入端子的狀態(接通或斷開),可以按二進位方式組合成3~16擋dang每mei一yi擋dang可ke預yu置zhi一yi個ge對dui應ying的de工gong作zuo頻pin率lv,則ze風feng機ji的de轉zhuan速su的de切qie換huan可ke以yi用yong開kai關guan器qi件jian通tong過guo改gai變bian外wai接jie輸shu入ru端duan子zi的de狀zhuang態tai及ji其qi組zu合he來lai實shi現xian,所suo以yi本ben控kong製zhi可ke用yong此ci方fang式shi來lai實shi現xian,假jia設she輸shu入ru端duan子ziX1、X2、X3被預置為多擋轉速的信號輸入端,則通過繼電器KAl、KA2、KA3的不同組合,可輸入7擋或8擋轉速信號(0狀態不計時為7擋,計人時為8擋),如圖4所示。
2.7.3 轉速擋與各輸入端狀態之間的關係(如表2所示)
2.7.4 在使用多擋轉速功能時,必須進行兩步預製
第一步,通過預製,確定哪幾個輸入端子為多擋轉速輸入端子;
第二步,預製與各擋轉速對應的工作頻率(即進行頻率給定)。
2.8 新風、回風、排風風閥的控製問題
tongchangfengfadezidongkongzhi,fengfashangdouanzhuangyouxingchengweizhichuanganqi,tongguofengfaxingchengweizhichuanganqidexinhaolaikongzhifengfadekaiducongerdadaoshidangdexinhuifengbiyaoqiu。youyukongzhixitongyaoduimonixinhaojinxingmoshuzhuanhuan,neibuhaiyaojinxingjisuan,zuihoujingmoshuzhuanhuanlaiqudongfengfadianjidaoxiangyingdeweizhi,congerdadaoyaoqiu。qichengxushejibijiaofuzaqiefengfachengbenyebijiaogao。youyubenxitongyongPLC當主控製器,可以用開關量信號取代模擬量信號,且PLC用梯形圖編程,程序編寫比較容易,且易實現。新風、回風、排風風閥在全開或全閉處都有開關量閥位信號且在15%、30%、60%、85%處都有開關量閥位信號送入PLC內部,由於新風和排風可以聯動控製,可以省去排風閥的閥位信號。例如:要求新回風風閥開度在(15%,85%)時,PLC的輸出端輸出開關量信號控製繼電器或接觸器,控製新回風風閥電機的轉動,當到達15%、85%時,15%、85%開關量閥位信號送人PLC內部,PLC內部由於程序的控製,控製新回風風閥電機的停止。這些閥位的控製都是在不同的運行工況下進行的有程序的編寫來完成。
2.9 交流異步電動機的直接啟動和變頻啟動問題
(1)交流異步電動機直接啟動控製線路簡單、經濟、操作方便,但受到電源容量的限製,僅適用於功率在1OKW以下或滿足全壓啟動經驗公式的電動機。當電動機容量較大(大於10KW),啟動時產生較大的啟動電流,會引起電網電壓的下降,因此必須采用降壓或變頻啟動的方法,限製啟動電流。
(2)由於本控製係統風機采用變頻啟動所以不會對電網造成影響,但是如果間接蒸發冷卻水泵功率超過10KW或不滿足全壓啟動經驗公式就不能直接啟動。可以通過PLC對變頻器的控製實施“1拖X”控製(由一台變頻器控製多台電機)。工作情況是:當蒸發冷卻空調機組啟動時,首先有變頻器啟動送風機電機。當滿足一定工況時控製係統要求啟動間接蒸發冷卻水泵,這時由PLC控製,把送風機電機切換至工頻運行,然後把間接蒸發冷卻水泵電機切換到變頻器中,變頻器的輸出頻率由OHZ逐漸上升直至工頻來減小啟動電流。經過一定的延遲由PLC內部計時,再把送風機電機接人變頻器中,如圖5所示。如果不采用這樣的控製也可以用PLC控製間接蒸發冷卻水泵電機,以Y/△的降壓啟動方式。
3 控製設備介紹說明
PLC是以微處理器為核心,綜合了計算機技術、自動控製技術和通信技術發展起來的一種通用的工業自動控製裝置,它具有可*性高、體積小、功能強、程序設計簡單、靈活通用、維護方便等一係列的優點,因而在工業、能源、化工、電力等領域中有著廣泛的應用。本控製係統選用三菱FX係列PLC可編程邏輯器件,FX係列PLC的係統配置靈活,價格便宜,用戶除了可以選用不同型號的FX係列PLC外,還可以選用各種擴展單元和擴展模塊,組成不同I/O點和不同功能的控製。
3.1 各功能模塊介紹
3.1.1 FXON-60MK-D型主單元PLC
FXON―60MR―D可組成24~128個I/O點,用戶存儲器容量為2000步。FXON有20條基本指令,2條步進指令,55條功能指令。FXON有較強的通信功能,可與內置RS~232C通信接口的設備通信。使用FXON一485ADP模塊,與計算機可實現1:N (最多8台)的通信。
3.1.2 模擬量輸入模塊FX2N-4AD
FX2N一4AD是模擬量輸入模塊,有四個輸入通道,分別為通道1(CHl)、通道2(CH2)、通道3(CH3)、通道4(CH4)。每一通道都可進行A/D轉換,其分辨率為12位。輸入的模擬電壓值範圍從直流-10~+IOV,分辨率為5mV。若為電流輸入,則電流輸入範圍為4~20mA或-20~20mA,分辨率為201xA。FX2N一4AD內部共有32個緩衝寄存器(BFM),用來與主機FX2N主單元PLC進行數據交換,每個緩衝寄存器的位數為16位。
3.1.3 模擬量輸出模塊FX2N-4DA
FX2N―4DA是模擬量輸出模塊,有4個輸出通道,分別為通道1(CHl)、通道2(CH2)、通道3(CH3)、通道4(CH4)。每一通道都可進行D/A轉換,其分辨率為12位。輸出的模擬值範圍,電壓為-10~+10V,電流為OmA~20mA,分辨率前者為5mV,後者為20μA。FX2N―4DA內部共有32個緩衝寄存器(BFM),用來與FX2NPLC之間進行數據交換,每個BFM的位數是16位。
3.2 UO電氣接口圖(如圖6所示)
3.3 UO地址表
該係統的輸入信號有啟動開關、各運行工況開關、風閥位置開關、末端設定風量開關、溫度、濕度傳感器(T1、T2、T3、H1)等。輸出信號控製的對象有水泵、水閥、送風風機、風閥等,采用FX係列PLC控製,其輸入、輸出地址如表3所示。
3. 控製係統的調試
PLC控製係統的安裝接線,隻需將現場的各種設備與PLC相應的I/O端相連。PLC軟件設計和調試大多可在實驗室裏進行,用模擬試驗開關代替輸入信號,其輸出狀態可以觀察PLC上的相應發光二極管,也可以另接輸出模擬試驗板。模擬調試好後,再將PLC控製係統安裝現場,進行聯機調試,這樣即省時間又很方便。由於PLC本身的可*性高,又有完善的自診斷能力,一旦發生故障,可以根據報警信息,迅速查明原因。
4 結束語
該(gai)文(wen)章(zhang)設(she)計(ji)了(le)集(ji)中(zhong)式(shi)蒸(zheng)發(fa)冷(leng)卻(que)空(kong)調(tiao)自(zi)控(kong)係(xi)統(tong),並(bing)給(gei)出(chu)了(le)具(ju)體(ti)的(de)控(kong)製(zhi)方(fang)案(an),在(zai)一(yi)些(xie)具(ju)體(ti)細(xi)節(jie)問(wen)題(ti)上(shang)給(gei)出(chu)了(le)具(ju)體(ti)的(de)控(kong)製(zhi)思(si)路(lu),下(xia)一(yi)步(bu)的(de)工(gong)作(zuo)將(jiang)是(shi)通(tong)過(guo)對(dui)程(cheng)序(xu)優(you)化(hua)來(lai)加(jia)以(yi)完(wan)善(shan),使(shi)得(de)整(zheng)個(ge)空(kong)調(tiao)係(xi)統(tong)達(da)到(dao)最(zui)佳(jia)的(de)溫(wen)濕(shi)度(du)控(kong)製(zhi),同(tong)時(shi)大(da)大(da)降(jiang)低(di)其(qi)能(neng)耗(hao)。
參考文獻
1 黃翔.強天偉.蒸發冷卻空調機組自動控製初探,陝西建築暖通空調專刊.2001;1
2 賀進寶.黃翔.梁才航.家用蒸發冷卻變風量中央空調送風係統自動控製方案的探討.建築科學,2004;20(增刊):160~165
3 黃翔.強天偉.武俊梅等.蒸發冷卻空調係統自動控製方案的探討.暖通空調.2003;33(4):109~112
4 玉琪.王強.劉旭等.中央空調選型、調試、控製和維修,北京:人民郵電出版社,2003;350-351
5 張燕賓.電動機變頻調速圖解北京:中國電力出版社,2003;66~67
6 張燕賓.電動機變頻調速圖解.北京:中國電力出版社,2003;69~70
7 漢琪.盛黨紅.鄧東華.電器控製與可編程序控製器應用技術.南京:東南大學出版社,2003;67~67
8 漢琪.盛黨紅.鄧東華.電器控製與可編程序控製器應用技術.南京:東南大學出版社,2003;143
9 漢琪.盛黨紅.鄧東華.電器控製與可編程序控製器應用技術.南京:東南大學出版社,2003;155~157


|