|
北京利德華福電氣技術有限公司 技術工程部 趙鎮 高gao壓ya變bian頻pin器qi屬shu於yu大da型xing電dian子zi設she備bei,對dui環huan境jing要yao求qiu比bi較jiao嚴yan格ge。統tong計ji多duo台tai設she備bei的de運yun行xing情qing況kuang,由you於yu現xian場chang環huan境jing溫wen度du過guo高gao而er引yin起qi的de設she備bei故gu障zhang比bi例li較jiao大da,因yin此ci我wo們men總zong結jie了le三san種zhong現xian場chang經jing常chang采cai用yong的de散san熱re方fang案an,供gong用yong戶hu參can考kao。 壓變頻器的損耗計算及對環境的溫度要求: 北京利德華福電氣技術有限公司生產的高壓變頻調速係統主要由以下三部分組成:控製櫃、功率櫃、變壓器櫃。其外形如圖1所示。
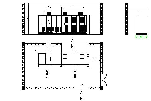
 圖1 高壓變頻調速係統外形圖 此係統使用多台離心風機進行散熱,以630kW/6kV變頻器為例,功率櫃頂為2台,變壓器櫃頂一般為1台,風機選用德國EBM公司生產的離心風機,此風機可靠性高,性能優異。風機根據變頻器功率等級不同,選用單相或三相風機。其中單相風機額定風量為2500 m3/h,三相風機額定風量為3300 m3/h。變頻器總的排風量為單個風機排風量乘以風機數量。 當變頻器滿負荷工作時,其總損耗(轉變為熱量)約為係統額定功率的3%,比如1000kW變頻器滿負荷工作時,損耗約為30kW。如此大的熱量如果全部排放到安裝變頻器的室內,將會使室內溫度迅速升高,嚴重影響變頻器的正常運行。 為了使變頻器能長期穩定和可靠地運行,對變頻器的安裝環境作如下要求: 最低環境溫度-5℃,最高環境溫度40℃,工作環境的溫度變化應不大於5℃/h。如果環境溫度超過允許值,應考慮配備相應的散熱設備。 1.場散熱方案 針對現場的不同環境,我們有三種散熱方案:加裝空調、加裝風道或安裝水空冷裝置。 1.加裝空調 1.1變頻器安裝空調時,要求變頻器控製室空間盡可能小,並且做好密封。 1.2空調容量的確定 原則:按照變頻器的發熱量和控製室環境實用麵積來選擇空調的容量 1.2.1製冷量的計算 變頻器發熱根據運行工況選擇,考慮一定的裕量,最大發熱量為變頻器額定功率的4%,如果長期運行頻率低於40Hz,則發熱量可按照變頻器額定功率的2%進行估算。 按照房間實用麵積計算空間單獨空間製冷所需的空調容量,一般每平方米可以按照150瓦特計算。 空調總體的製冷量應為變頻器的發熱量加上空間製冷所需的製冷量。 1.2.2 空調的選擇 所謂的空調“匹”數,原指輸入功率的大小,包括壓縮機、風扇電機及電控部分所消耗的能量,製冷量以輸出功率的多少計算。 一般來說,1匹空調的製冷量大致為2000大卡,換算成國際單位應乘以1.162,故1匹之製冷量應為2000大卡×1.162=2324(W), 這裏的W(瓦)即表示製冷量,則1.5匹的應為2000大卡×1. 5×1.162=3486(W),以此類推。根據此情況,則大致能判定空調的匹數和製冷量,一般情況下,2200W-2600W都可稱為1匹,4500(W)-5100(W)可稱為2匹,3200W-3600W可稱為1.5匹。 1.3 空調散熱的優缺點: 優點:由於室內外空氣沒有直接流通,容易保證室內環境清潔。 缺點:空調的可靠性會影響變頻器的穩定運行,空調費用高,運行費用高。 2.加裝風道 2.1通風量的計算 變頻器總的排風量為單個風機排風量乘以風機數量。單相風機的流量為2500 m3/h,三相風機的流量為3300 m3/h。變頻器室的入風、出風量需要同該數值匹配。 2.2風道的設計 常(chang)規(gui)的(de)設(she)計(ji)是(shi)在(zai)機(ji)櫃(gui)上(shang)麵(mian)安(an)裝(zhuang)風(feng)道(dao),將(jiang)變(bian)頻(pin)器(qi)產(chan)生(sheng)的(de)熱(re)量(liang)直(zhi)接(jie)排(pai)放(fang)到(dao)室(shi)外(wai),由(you)變(bian)頻(pin)器(qi)室(shi)的(de)進(jin)風(feng)口(kou)不(bu)斷(duan)補(bu)充(chong)冷(leng)風(feng),對(dui)係(xi)統(tong)進(jin)行(xing)冷(leng)卻(que),具(ju)體(ti)排(pai)風(feng)方(fang)案(an)及(ji)風(feng)的(de)流(liu)向(xiang)見(jian)圖(tu)2:
 圖2 正麵視圖
 圖3 側麵視圖 圖3中所示進風口的麵積需要根據係統的具體情況進行確定,並且風口應設置空氣過濾網,過濾網的網孔不得大於5×5mm。係統的通風量Qf,假定進風口的風速V不超過3 m/s,由Qf =S×V可知,進風口的麵積S≈Qf /V。 根據風冷係統的散熱原理,△Q=△t×Qf×Cp×ρ,其中: △Q:係統總的損耗功率 △t:空氣進口與出口的溫差; Qf:總的通風量 Cp:空氣的比熱:1005J/kg℃ ρ:空氣的密度:1.165kg/ m3 根據以上條件計算出△t(空氣進口與出口的溫差)。 如果變頻器櫃頂風機距出風口較近(小於2米,中間無轉折),出風口可不加裝輔助排風機。如果進風口的現場施工存在不便,風道需有轉折,則可以考慮加裝風機強迫進風。 風feng道dao的de具ju體ti施shi工gong可ke在zai變bian頻pin器qi安an裝zhuang就jiu位wei後hou,在zai現xian場chang進jin行xing。我wo公gong司si安an裝zhuang調tiao試shi人ren員yuan可ke在zai現xian場chang進jin行xing指zhi導dao。需xu要yao注zhu意yi的de是shi變bian壓ya器qi櫃gui風feng道dao和he功gong率lv櫃gui風feng道dao需xu分fen開kai,否fou則ze將jiang會hui影ying響xiang到dao功gong率lv單dan元yuan的de正zheng常chang散san熱re。 2.3 風道散熱的優缺點: 優點:成本低,可靠性高,散熱效果良好 缺點:不能使用於現場比較髒,灰塵比較大的環境。 3.水空冷散熱 3.1 水空冷卻係統的工作原理 水空冷卻係統(簡稱空冷器)是一種利用高效、環保、節能的冷卻係統,其應用技術在國內處於領先地位。其外形及原理如圖4
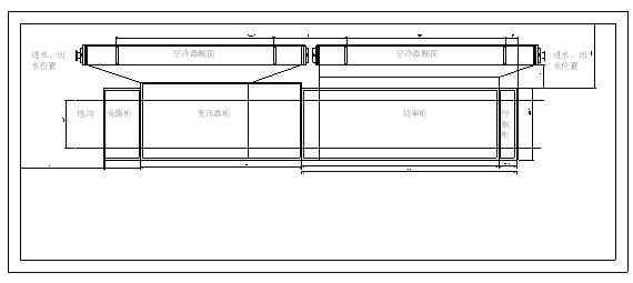
 圖4 原理圖 從變頻器出來的熱風,經過風管連接到內有固定水冷管的散熱器中,散熱器中通過溫度低於33℃的(de)冷(leng)水(shui),熱(re)風(feng)經(jing)過(guo)散(san)熱(re)片(pian)後(hou),將(jiang)熱(re)量(liang)傳(chuan)遞(di)給(gei)冷(leng)水(shui),變(bian)成(cheng)冷(leng)風(feng)從(cong)散(san)熱(re)片(pian)吹(chui)出(chu),熱(re)量(liang)被(bei)循(xun)環(huan)冷(leng)卻(que)水(shui)帶(dai)走(zou),保(bao)證(zheng)了(le)變(bian)頻(pin)器(qi)控(kong)製(zhi)室(shi)內(nei)的(de)溫(wen)度(du)恒(heng)定(ding)。 安裝空冷器要求必須在密閉環境中,為了提高冷卻效果,安放設備的空間要盡可能小。流入空冷器的水為循環水,為保護設備,要求循環水的PH值為中性,且無腐蝕損壞銅鐵的雜質,進水的水壓一般為0.2Mpa,進水溫度≤33℃。 空冷器的維護簡單易行,一般半年維護1次。 3.2 關於變頻器安裝空冷器後對現場的部分要求 空冷器使用吊裝方式,所以在空冷器吊裝上方的屋頂必須有方鋼或槽鋼作為支撐梁。 空冷器的輔助設備:如流量計(可不加)、調節閥門、過濾器等最好與變頻設備隔離安裝 。 安裝設備的簡易房應密閉,牆壁由保溫材料組成。 空冷器的技術條件如下: 進水溫度:≤33℃,工作水壓:0.2MPa 水流量:≥24.5m3/h,管口內徑:Φ80 根據上述條件,可選購空冷器的輔助設備:普通水泵、流量計、調節閥門、過濾器、水管(無縫管)及其它器件。 3.3 變頻器空冷方案布置圖圖5、圖6、圖7:
 圖5 正視圖
 圖6 側視圖
 圖7 俯視圖 4.總結 本文介紹的變頻器現場散熱方案僅僅是我們工作中總結的一些經驗性的資料,歡迎大家提出寶貴意見和建議,以便我們工作的改進。
|